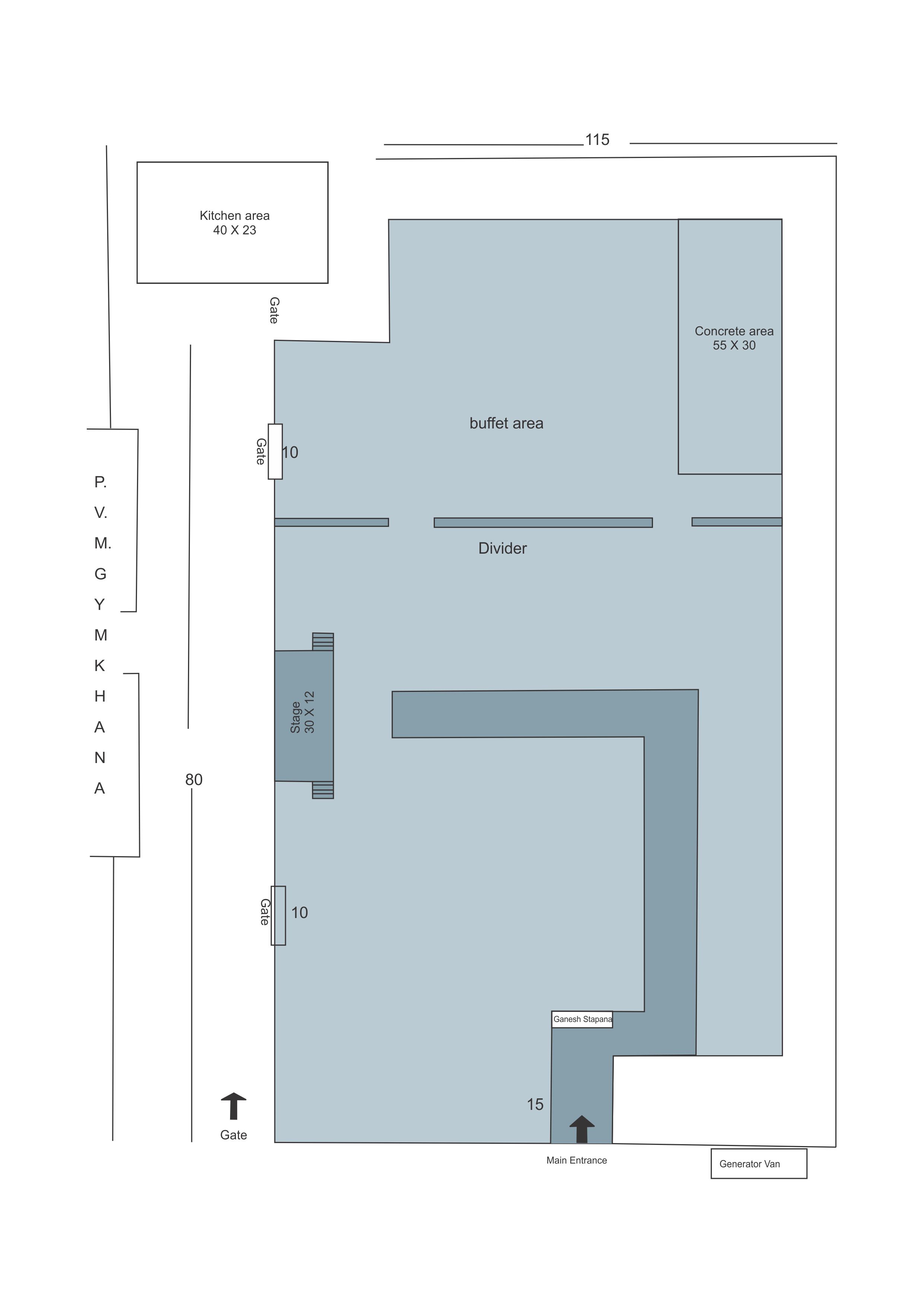
The Princess Victoria Mary Gymkhana located in Nariman Point, Mumbai has Banquet Halls and Wedding Lawns.
Capacity: 100 - 150 Address: Princess Victoria Mary Gymkhana, Maharishi Karve Road, Nariman Point, Mumbai - 4000 21 Phone: +91 22 22025246
© copyrights Samani Decorators Design & Developed By Xpressions Pixel Works.